収益物件
一棟アパート
| 物件情報 | |||
収益物件 一棟アパート ウェルスSOGA | |||
| 販売価格 | 9,450万円 | 表面利回り | 6.71% 想定年収:634.56万円(満室時) |
|---|---|---|---|
| 取引態様 | 専任媒介 | 築年月 | 平成30年4月 |
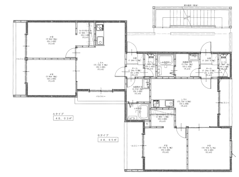
| 所在地 | 千葉市中央区稲荷町2丁目1-9 地図を見る | 戸 数 | 6戸 |
| 沿線・駅・交通 | JR京葉線『蘇我駅』徒歩18分 | 面 積 | 土地:322.30㎡ 建物:290.04㎡ |
| 備 考 | JR京葉線『蘇我駅』徒歩約18分、京成千原線『千葉寺駅』まで徒歩16分のダブルアクセス可能。 『蘇我駅』より乗換無しの1本で東京都内までアクセス可能(約40分)な為、千葉県内にお勤めの方 のみならず都内でご勤務されている社会人様もターゲットとしてご検討頂けます。 敷地内には100%分の駐車場完備。 徒歩圏内にはショッピングモール(アリオ蘇我)、スーパー(ロピア蘇我)、コンビニ、飲食店等が 多数ある生活に便利な立地となっておりますので、単身者様だけでなくファミリー様にも人気のエリアです。 ※西側国道が計画道路となっている為、本土地西側の一部が計画道路に差し掛かっております。詳しくはお問い合わせ下さい。 | ||
お電話でのお問合せ(通話無料)受付時間 AM9:00〜PM17:30 0120-999-695 |
| その他の物件情報が必要ですか? | |
最新の情報をお手元に メルマガ申し込み(無料) | 条件に合わせて物件紹介 物件オーダーシート(無料) |
